




計画概要
- 計画地
-
Singapore
- 用途
-
福祉支援複合施設
- 構造
-
鉄骨造・鉄筋コンクリート造
- デザイン
-
2020 年
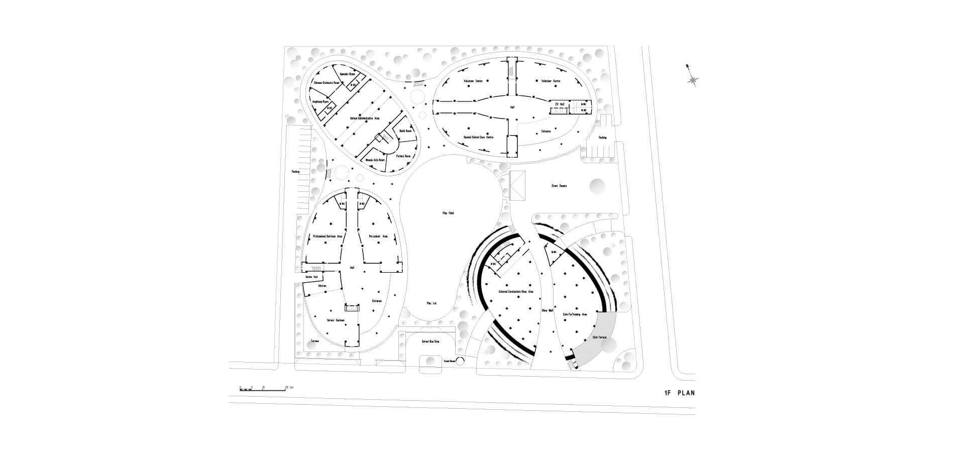
シンガポール国内で社会奉仕プログラムを提供する仏教慈善団体(Welfare Association)による障害者の幼児教育から職業訓練、就労支援、社会復帰まで全てを包括する複合施設です。仏語の「三世因果」をテーマに大地と宇宙をイメージして計画をしています。





Singapore
福祉支援複合施設
鉄骨造・鉄筋コンクリート造
2020 年
シンガポール国内で社会奉仕プログラムを提供する仏教慈善団体(Welfare Association)による障害者の幼児教育から職業訓練、就労支援、社会復帰まで全てを包括する複合施設です。仏語の「三世因果」をテーマに大地と宇宙をイメージして計画をしています。