MENU
Top
Information
Philosophy
Profile
Design Process
Office
Works
Welfare Facilities
▷+W09
▷+W08
▷+W07
▷+W06
▷+W05
▷+W04
▷+W03
▷+W02
▷+W01
Residential Facilities
▷+R04
▷+R03
▷+R02
▷+R01
Medical Facilities
▷+M02
▷+M01
Planning
▷+P06
▷+P05
▷+P04
▷+P03
▷+P02
▷+P01
Contact
ATELIER J-in(アトリエ ジェイイン)
Top
Information
Philosophy
Profile
Design Process
Office
Works
Welfare Facilities
▷+W09
▷+W08
▷+W07
▷+W06
▷+W05
▷+W04
▷+W03
▷+W02
▷+W01
Residential Facilities
▷+R04
▷+R03
▷+R02
▷+R01
Medical Facilities
▷+M02
▷+M01
Planning
▷+P06
▷+P05
▷+P04
▷+P03
▷+P02
▷+P01
Contact
Top
Information
Works
Contact
ホーム
Works
Planning
P03
P03
VIEW
p03-03
p03-04
p03-01
p03-02
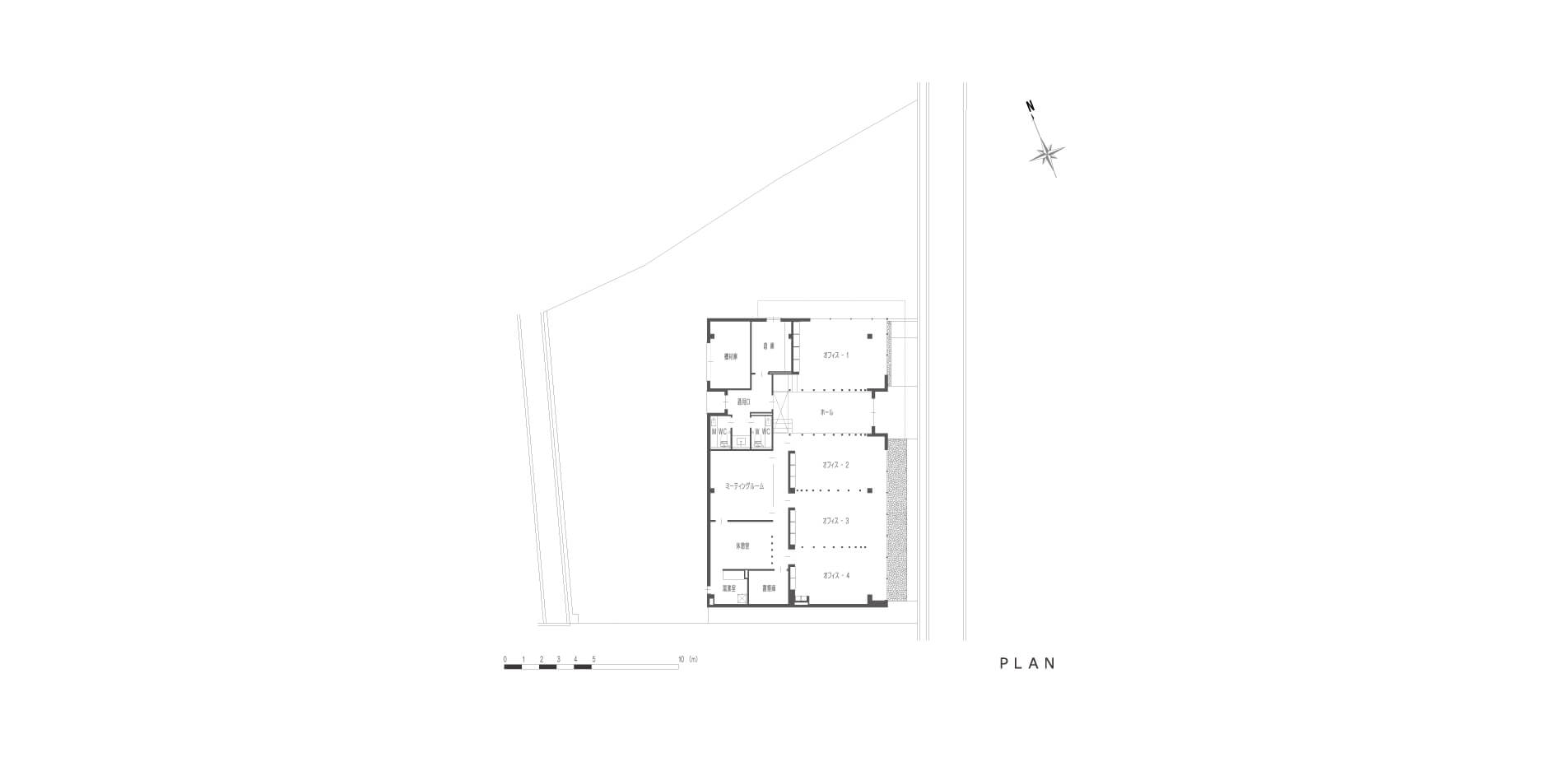
計画概要
計画地
兵庫県内
用途
福祉事業事務所
構造
鉄骨造
デザイン
2022 年
訪問介護事業を主とする小規模の事業所事務所です。
視覚的に事業所スペースを幹線道路から見てフロートするイメージの外観で計画しています。
閉じる