W09

welfare-01

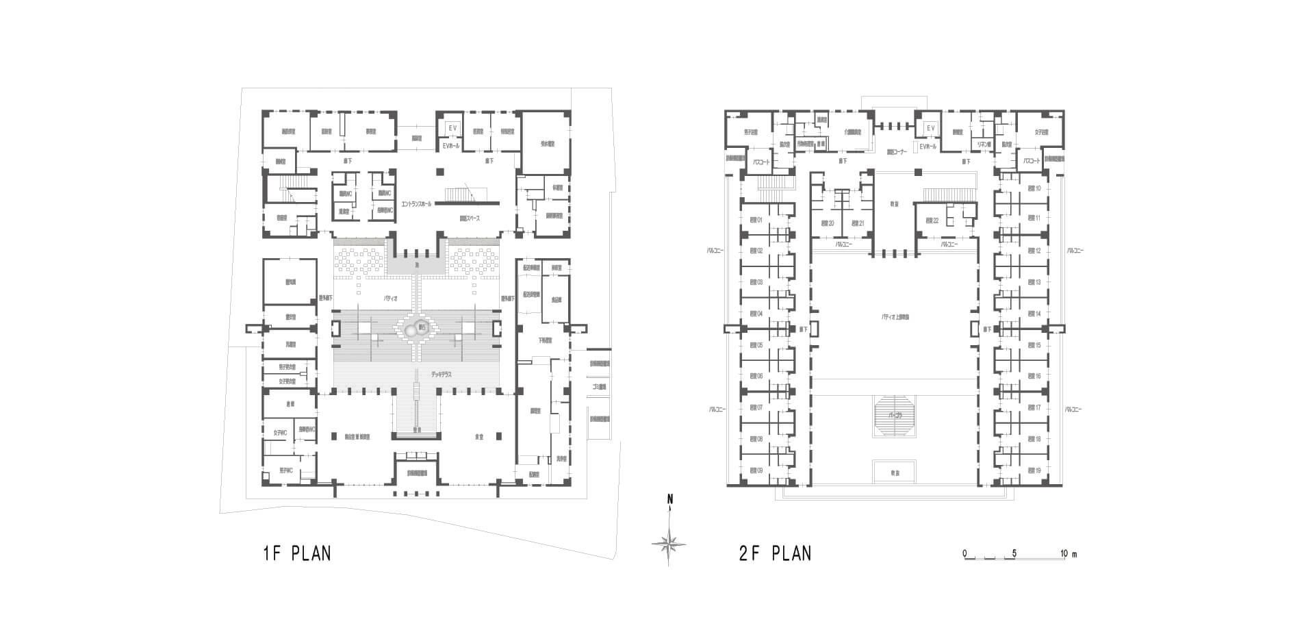
建物概要

建物用途

Welfare Facility(救護施設)

建物場所

岡山県内

構造・規模

鉄筋コンクリート造2階建

敷地面積

1,719.36㎡

建築面積

1,029.45㎡

延床面積

1,538.55㎡

竣工

2022 年

撮影

栗原 宏光