








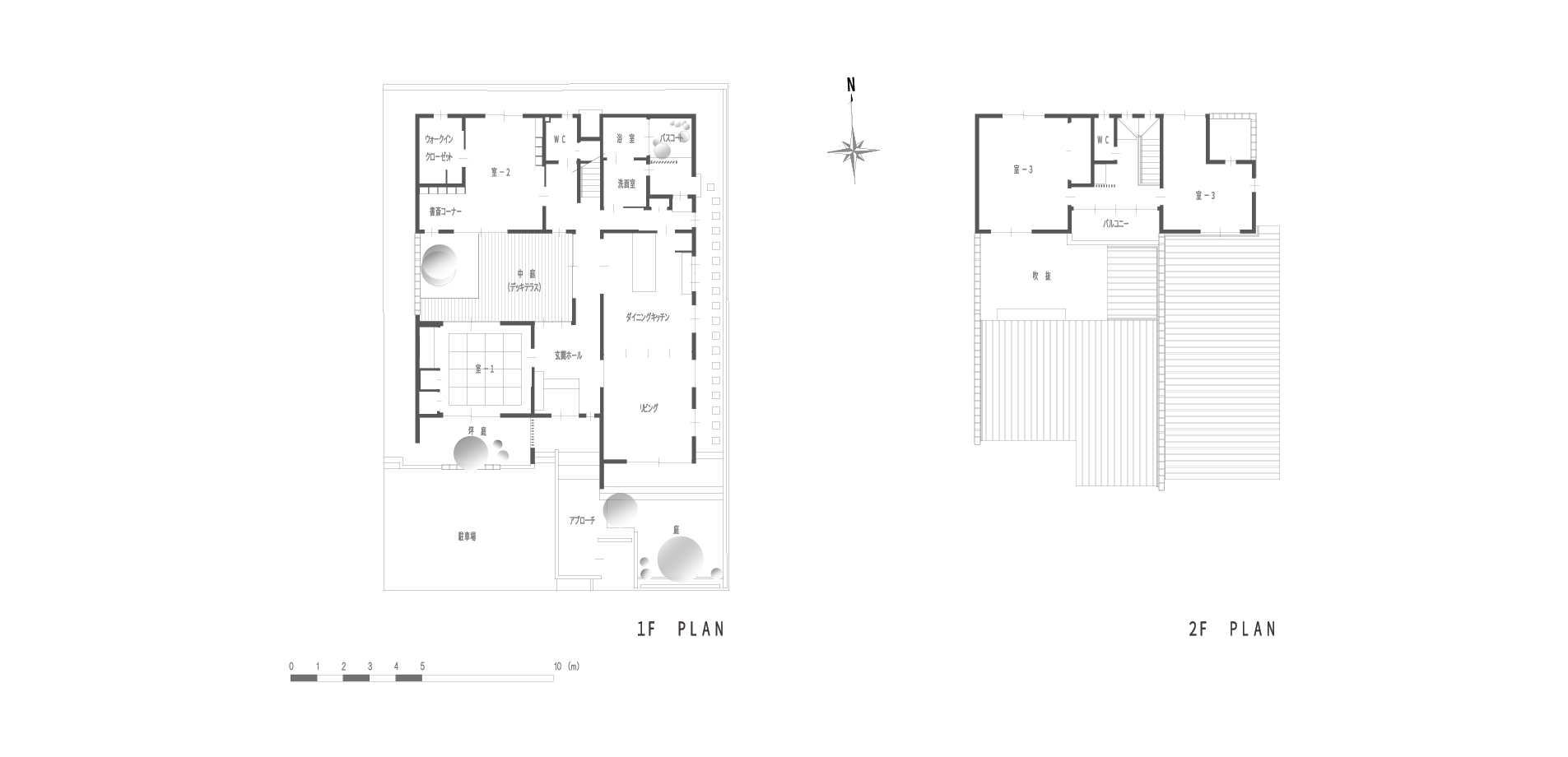
建物概要
- 建物用途
-
Residential Facilitiy(住宅)
- 建物場所
-
岡山県内
- 構造・規模
-
木造 2階建
- 敷地面積
-
330.10㎡
- 建築面積
-
153.12㎡
- 延床面積
-
183.80㎡
- 竣工
-
2009 年
- 撮影
-
栗原 宏光









Residential Facilitiy(住宅)
岡山県内
木造 2階建
330.10㎡
153.12㎡
183.80㎡
2009 年
栗原 宏光