P04

p04-01

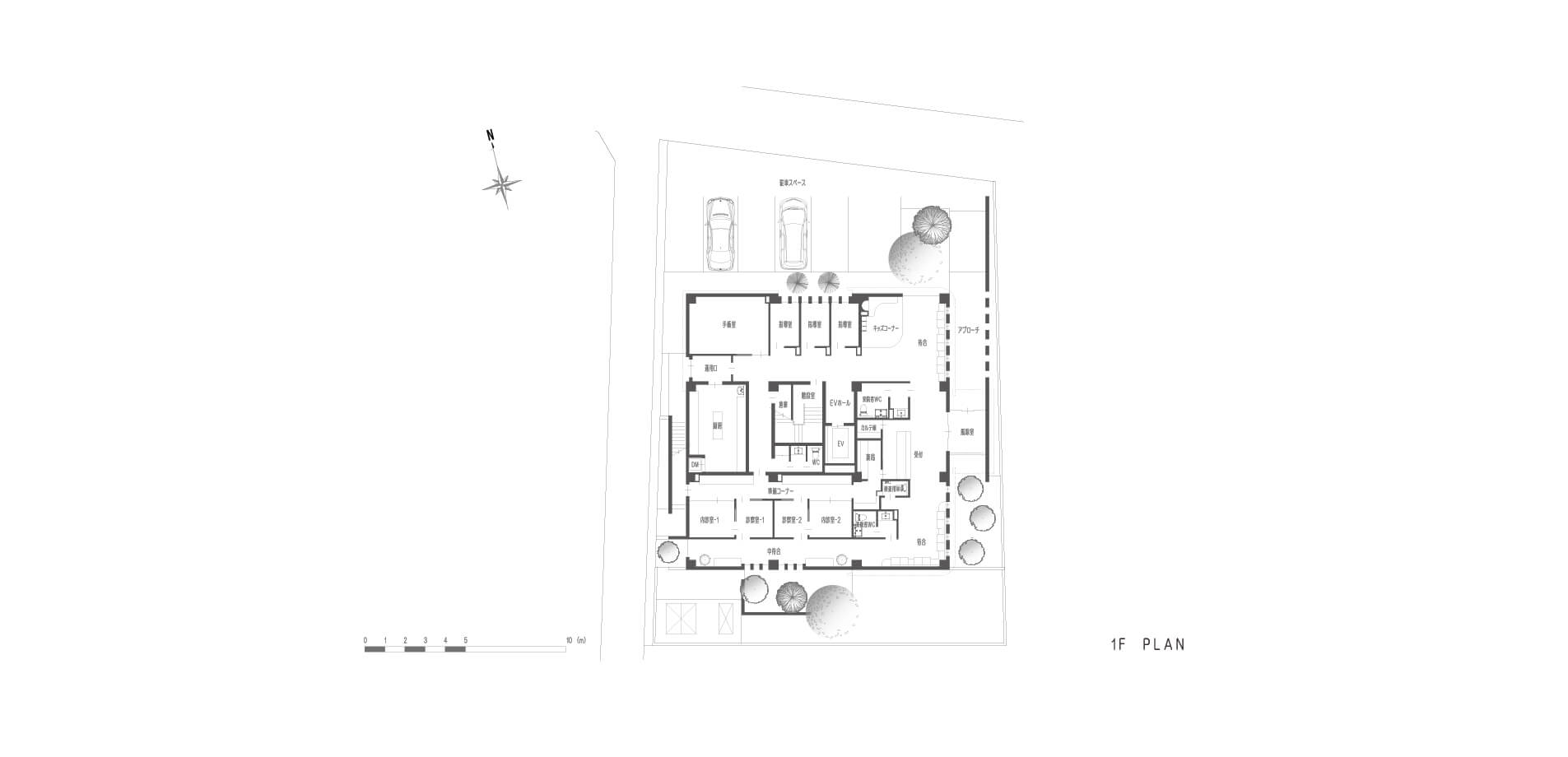
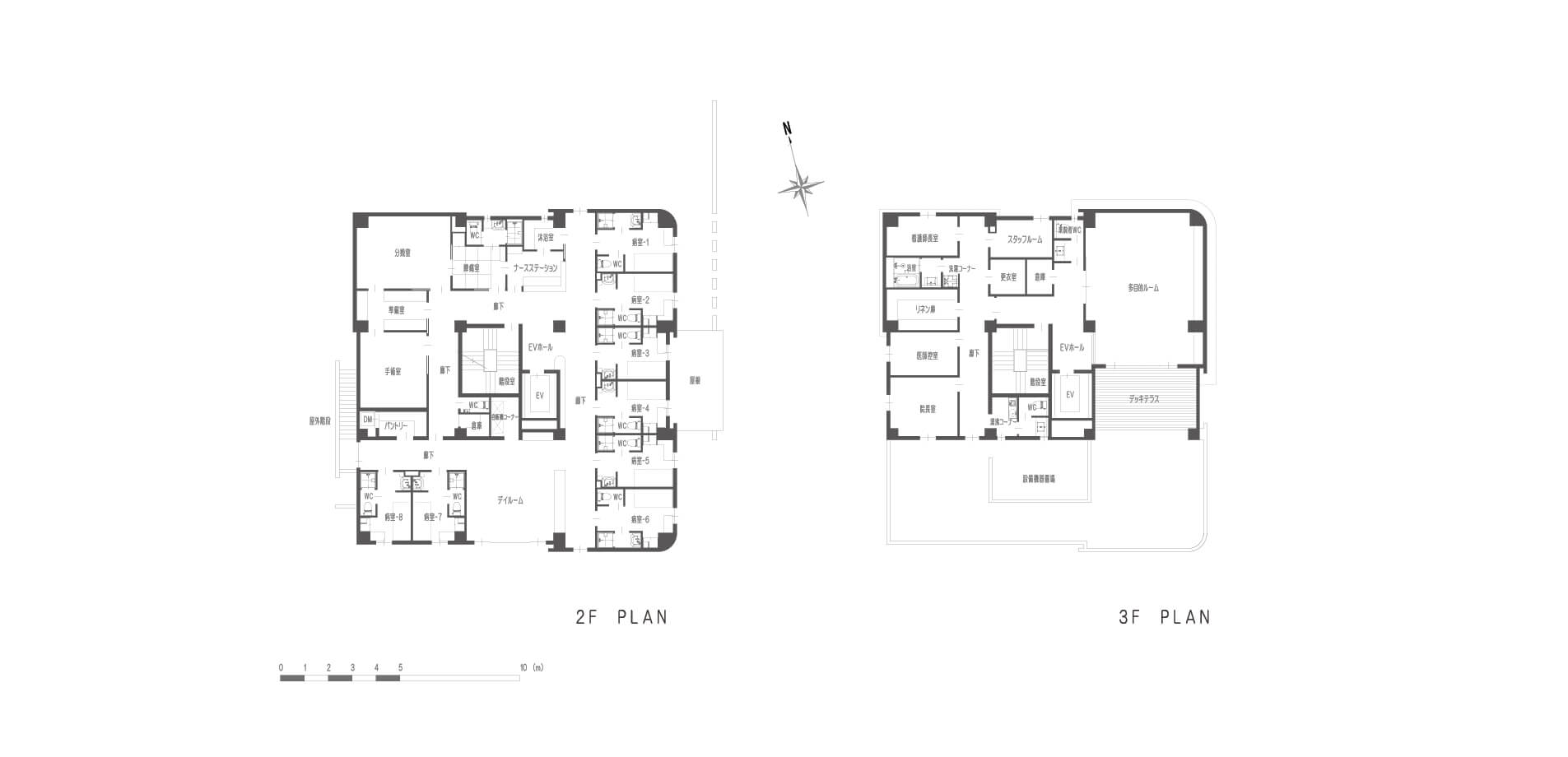
計画概要

計画地

兵庫県内

用途

産婦人科クリニック

構造

鉄筋コンクリート造

デザイン

2024 年

病床8床の産婦人科クリニックです。
包む(くるむ)イメージを外観にアレンジした計画としています。