P06

p06-01

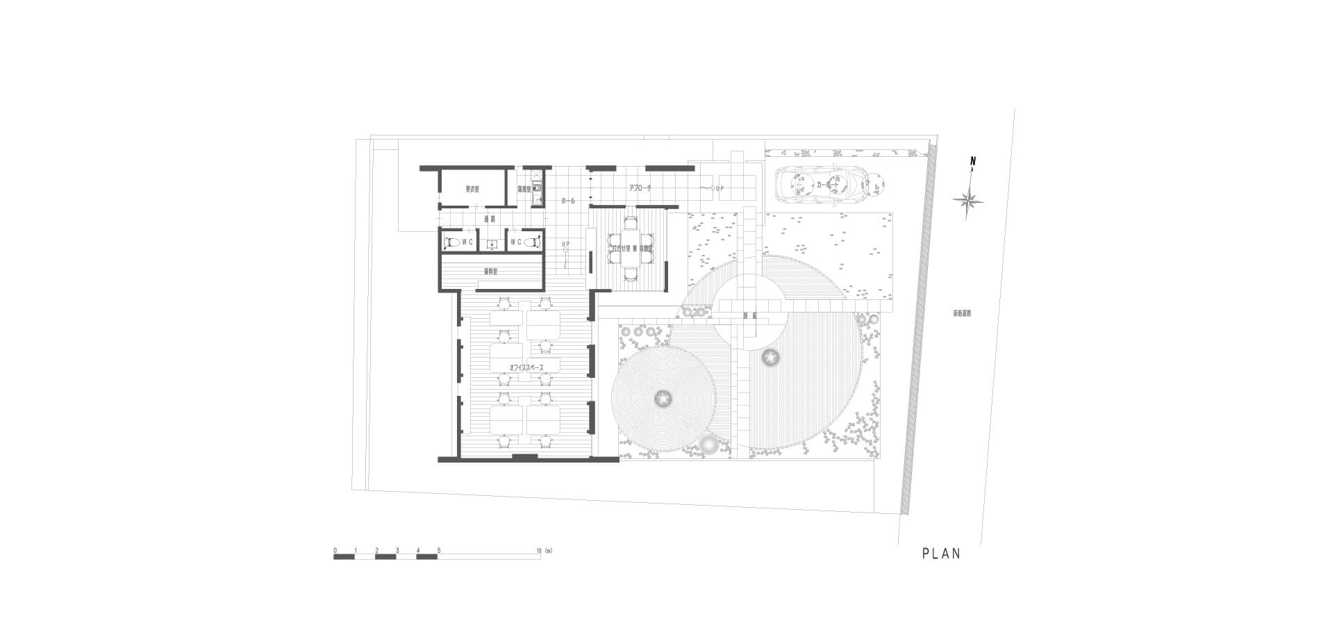
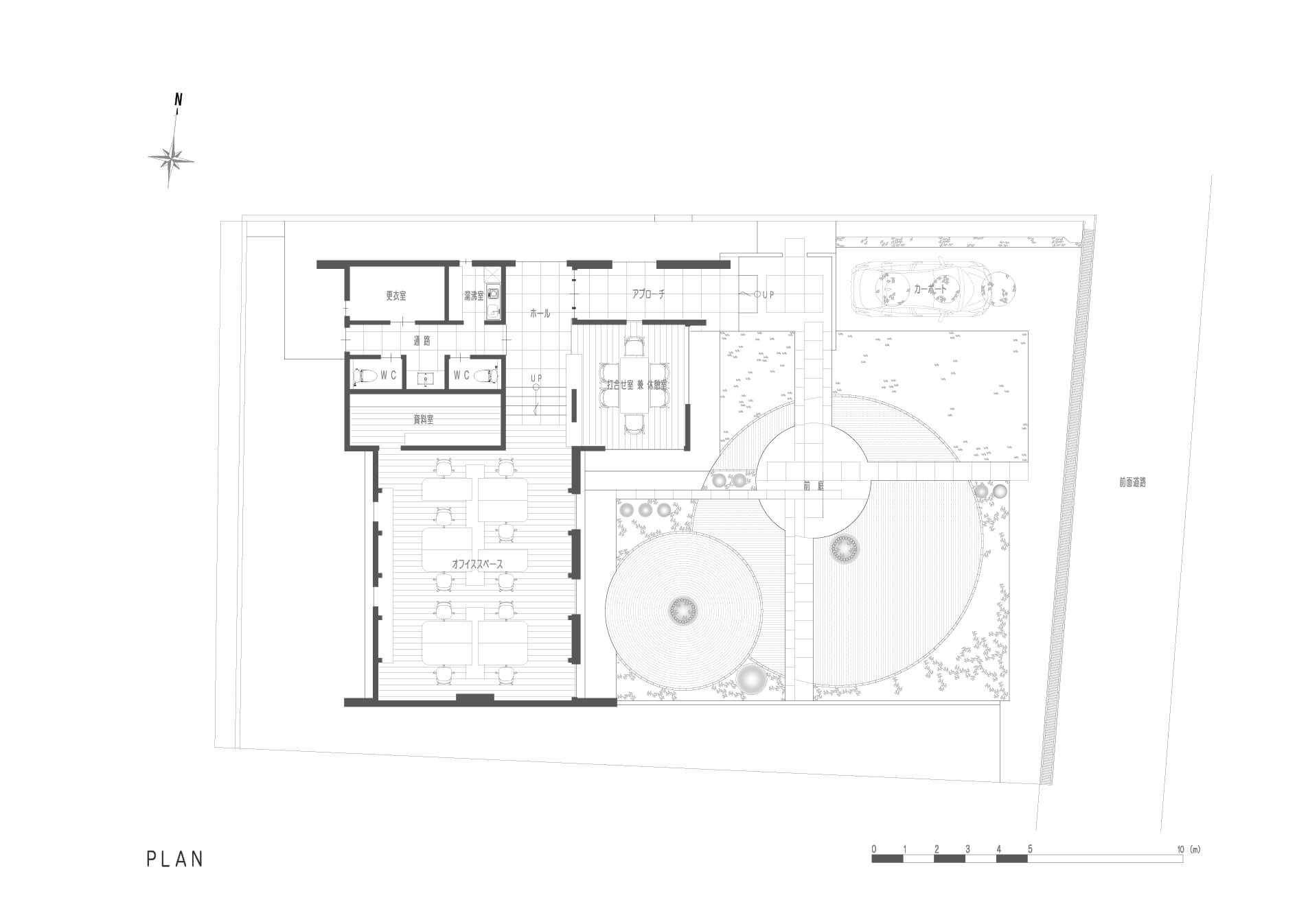
計画概要

計画地

岡山県内

用途

事務所

構造

木造

デザイン

2025 年

女性だけのオフィスです。
フロアスキップしたオフィススペースから庭を眺めながらの執務空間。
仕事の緊張感とリラックス感を融合させた空間をイメージした計画です。